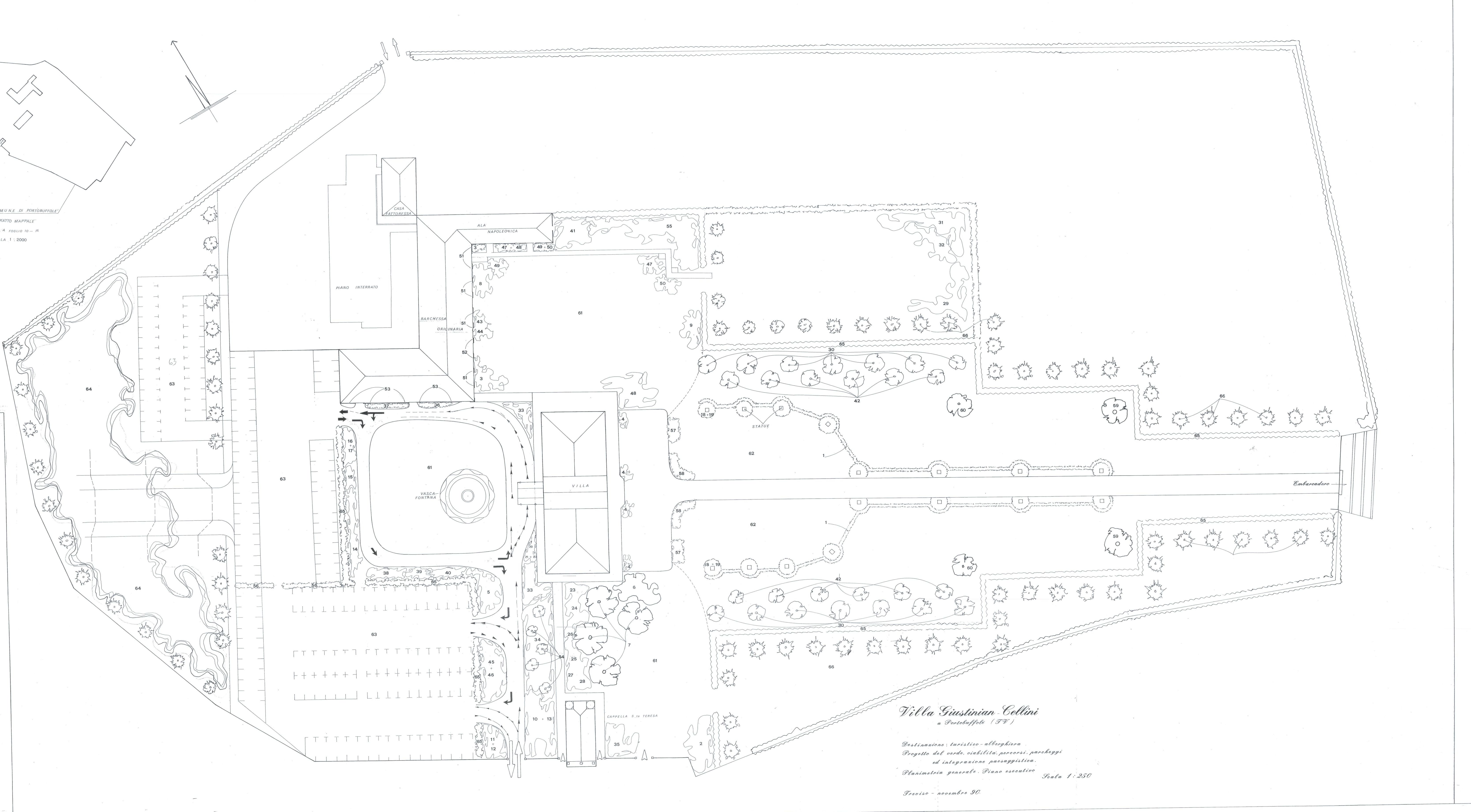
Villa Giustinian-Cellini Portobuffolé TV 1990 (2)1 Published 24 giugno 2012 at 6665 × 3680 in Villa Giustinian Cellini – Portobuffolè (Tv)